MAKARSKA Peterosoban dvoetažan stan u istočnom dijelu grada s garažom

  • 600.000 €
  • 3.323 €/m2
Splitsko-dalmatinska županija, Makarska
  • S562
  • ID nekretnine
  • Stan
  • Vrsta nekretnine
  • 180.54
  • m2
  • 5
  • Spavaće sobe
  • 3
  • Kupaonice

MAKARSKA Peterosoban dvoetažan stan u istočnom dijelu grada s garažom

Splitsko-dalmatinska županija, Makarska
  • 600.000 €
  • 3.323 €/m2

Opis nekretnine

Posredujemo u prodaji peterosobnog dvoetažnog stana u istočnom dijelu Makarske. Stambena zgrada se nalazi u mirnom okruženju, u blizini svih sadržaja potrebnih za svakodnevni život (škola, vrtić, trgovine, sportski centar, trgovački centri i sl.), od centra grada i rive udaljena cca 600 m.

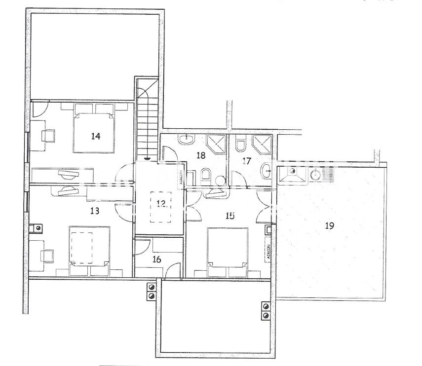
Stan ukupne korisne površine 169,20 m2 raspolaže s dvije etaže. Na prvoj etaži površine 107,60 m2 nalazi se hodnik, dvije spavaće sobe, kupaonica, wc, kuhinja, dnevna soba s izlazom na lođu južne orijentacije koja ima pogled na more i grad, te blagovaonica s izlazom na drugu lođu s koje je također pruža otvoren pogled na more i grad.

Na drugoj etaži površine 61,60 m2 nalazi se hodnik, tri spavaće sobe, dvije kupaonice, garderoba i prostrana terasa s pogledom na more, otoke i planinu na koju se izlazi iz jedne spavaće sobe. Uz stan dolazi garaža u podrumu zgrade korisne površine 11,34 m2.

Ukupna korisna površina stana je 180,54 m2. Nekretnina se nalazi na 4. katu stambene zgrade. Stan je klimatiziran, namješten i opremljen, i kao takav se prodaje. Dokumentacija uredna.

Za sve dodatne informacije, eventualan obilazak, stojimo Vam na raspolaganju putem e-maila forcanekretnine@hotmail.com .

Više informacija

  • ID nekretnine: S562
  • Cijena nekretnine: 600.000 €
  • Površina nekretnine: 180.54 m2
  • Spavaće sobe: 5
  • Kupaonice: 3
  • Vrsta nekretnine: Stan

Dodatne pojedinosti

  • Kat: 4
  • Broj etaža: 2
  • Orijentacija: jug
  • Udaljenost od mora: 750 m
  • Udaljenost od centra: 600 m

Tlocrti katova

Kontakt informacije

Raspitajte se o ovoj nekretnini

Compare listings

Compare
Forca nekretnine
  • Forca nekretnine